Получите полную презентацию поселка

Дом, 323 м2

Цена: 136 000 000 руб.
Код объекта: 220-747

Новый современный коттедж 323 кв.м под ключ, с установленной и полностью оборудованной кухней. Расположен в строго охраняемом поселке бизнес-класса Крекшино, рядом лес и каскад прудов. Использованы высококачественные импортные материалы и инженерия! Отделка выполнена по дизайн-проекту в стиле современной классики, полностью проработана меблировка дома со спецификацией всей мебели, что позволяет быстро полностью обустроить дом. Удобное транспортное сообщение по Киевскому, Минскому, Боровскому шоссе, также в удобной близости платная автомагистраль, которая всегда позволит доехать без пробок до МКАД и до Москва-Сити менее, чем за 30 мин. В пешей доступности развитая инфраструктура, в том числе: Премьерский лицей и государственная школа № 2057, а в 10 мин езды такие престижные школы, как МЭШ и Гимназия Святителя Василия Великого., детские сады, поликлиника, магазины, фермерский рынок, ресторан, церковь).

Общая площадь строений: 323 м2
Количество уровней: 2
Спален: 4. С/узлов: 3. Комнат всего: 5.
Опции: машиномест крытых: 2, в т.ч. в теплом гараже: 2; терраса; камин.
Материал стен: наружные стены выполнены из керамического крупноформатного камня "RAUF" 250мм, утеплитель 100 мм, внутренние - кирпич марки 125;
Облицовка стен: облицовочный кирпич Terca, декоративная фасадная доска
Стадия готовности: под ключ
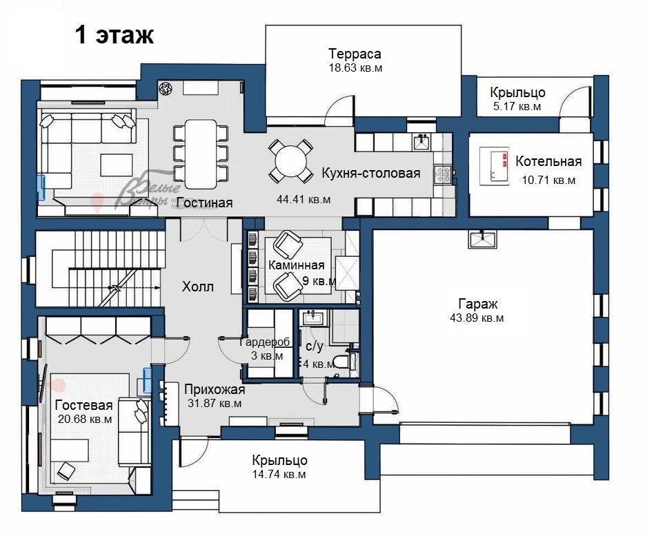
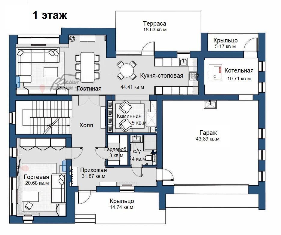
1-ый этаж: крыльцо 14.7 кв.м, прихожая-холл 32 кв.м, гардеробная 3 кв.м, полноценный гостевой санузел 4 кв.м, кабинет-спальня 20.6 кв.м. Продуманные зоны, перетекающие одна из другой: кухня-столовая-гостиная 44 кв.м с выходом на террасу 18.6 кв.м и участок, уютная каминная 9 кв.м. Теплый гараж 44 к.м, котельная 10.7 кв.м с отдельным входом.
2-ой этаж: на втором этаже расположен мастер-блок общей площадью почти 50 метров: спальня 26 кв.м, ванная 9 кв.м, гардероб 8 кв.м и даже свой балкон 6 кв.м. Холл 11 кв.м, санузел 5 кв.м, детская спальня 15 кв.м с балконом 6 кв.м, гостевая спальня 21 кв.м, постирочная 7 кв.м
Описание внутренней отделки: Отделку отличает высокое качество работ (использованы качественные материалы надежных российских и зарубежных брендов. Внутренние стены оштукатурены и покрашены водостойкой моющейся краской Beckers. Высокие межкомнатные двери от фабрики Волховец (высота полотна - 2.3 м) со скрытыми петлями и магнитными замками. Установлена звукоизоляционная стеклянная перегородка-портал из коридора в гостиную. Напольное покрытие Quarz Parquet с основой (нижним слоем) из кварц-винила и верхним слоем из натурального дуба, покрытого семью слоями лака, - стабильный материал, не боится влаги и при этом имеет фактуру и теплоту дерева. Установлена сантехника Splendy. Многоплановое освещение совмещает потолочное (люстры, трэки) с внутрикарнизным и с настенным (бра). Свет, розетки, выключатели - Maytoni. Подоконники из кварцевого агломерата. Установлена роскошная лестница - на стальном каркасе, комфортные ступени из массива дуба 32см*15 см, с подсветкой, ограждение из закаленного затемненного стекла, широкие и эффектные плинтуса и карнизы из дюрополимера.
Инженерное обеспечение: немецкий газовый котел ViessmannVitogas 100-F, бойлер Viessmann на 300л. Установлены кондиционеры марки Haier в каждом помещении. Биметаллические радиаторы отопления Tubog. На террасе выведено освещение, розетки. Электрика, автоматы АВВ. Установлен мастер-выключатель.
Мебель, оборудование: дом частично меблирован, установлена кухня Este с фасадами из МДФ, витринами для посуды, со столешницей и фартуком из кварцевого агломерата и со встроенной бытовой техникой марки Weissgauff (индукционная варочная панель, духовой шкаф, СВЧ, посудомоечная машина на 60 см, холодильник, вытяжка). Уютный качественный текстиль (тюль, шторы) на окнах.
Дополнительные строения: Светлый отапливаемый гараж в доме, с автоматическими гаражными воротами DoorHan на 2 авто.
Дополнительная информация о доме: Высота потолков: 1ый этаж - 3.1 м, 2ой этаж - 3.1 м. Фундамент—ленточный, выполненный из монолитного железобетона, полы 1-го этажа по утепленной монолитной ж/б плите, перекрытия (над 1-ым эт.) - сборные ж/б плиты. Покрытие террасы из деревянного настила по монолитному каркасу.

Участок

Площадь участка, соток: 12.21
Тип участка: полевой
Благоустройство участка: участок выровнен, высажен газон, установлен автополив (1 контур). Большая площадка перед домом вымощена качественной плиткой и вмещает еще 4 авто.
Статус земли: земли населенных пунктов, для ИЖС
Дополнительная информация об участке: участок прямоугольной формы, огорожен кованым забором по фасаду в едином стиле коттеджного поселка.


Фото


Планировки

Похожие коттеджные поселки:

Графские Пруды
Графские Пруды
Дизайнерский поселок премиум-класса на Киевском ш, 28 км. Вокруг заповедный лес, свое озеро, архитектура Л.Райта
Глаголево Парк
Глаголево Парк
Киевское шоссе, 33 км. Жилой элитный поселок в лесу. Бассейн, школа, детский сад и др. Дома дерево/кирпич от 275 до 500 кв.м, участки от 15-60 сот. Озеро.
Мартемьяново
Мартемьяново
Земельные участки и готовые дома по Киевскому шоссе, 27 км. Обжитой современный поселок с центральными коммуникациями, охраной и широкими дорогами
Новое Румянцево
Новое Румянцево
Камерный поселок бизнес-класса на Киевском шоссе, в 1 км от МКАД, в 15 мин от метро Румянцево
Валуевская Слобода
Валуевская Слобода
Готовые дома и земельные участки в поселке бизнес-класса между Киевским и Калужским шоссе в 10 км от МКАД
Ново-Никольское
Ново-Никольское
Камерный, полностью построенный коттеджный поселок в европейском стиле. Коттеджи и дуплексы бизнес-класса в Новой Москве на Киевском шоссе
Усадьба Бергов
Усадьба Бергов
Камерный коттеджный поселок в историческом парковом месте на берегу реки. 21 км по Киевскому шоссе, в районе поселка Первомайское